Τουρισμός - Εστίαση Crash Test: Πόσο πάει το αεροπορικό για διακοπές Χριστουγέννων Το κόστος αεροπορικών εισιτηρίων για όσους προγραμματίζουν διακοπές τον Δεκέμβρη 07:00 - 23 Οκτωβρίου 2019
REPORTER NEWS Συνελήφθη ο πρώην καλαθοσφαιριστής Κωστέκογλου-Πλούσιο το παρελθόν του 07:00 - 23 Οκτωβρίου 2019
Ποδόσφαιρο Κύπρος Η ικανοποίηση του Μπεργκ, αυτοί που ξεχωρίζουν και η δύσκολη συνέχεια 07:00 - 23 Οκτωβρίου 2019
POLICE REPORTER Συνελήφθη ο πρώην καλαθοσφαιριστής Κωστέκογλου-Πλούσιο το παρελθόν του 06:59 - 23 Οκτωβρίου 2019
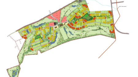
Ανάπτυξη Γης - Κατασκευές Limassol Greens: Επένδυση μαμούθ δίπλα από καζίνο θέρετρο To έργο θα περιλαμβάνει πολυτελείς επαύλεις, γήπεδο γκολφ 18 οπών και άλλες εγκαταστάσεις υψηλών προδιαγραφών 06:58 - 23 Οκτωβρίου 2019
Ποδόσφαιρο Κύπρος Γύρισε επτά χρόνια πίσω ο Απόλλωνας, ψάχνει τρόπους ανάκαμψης ο Αυγουστή 06:50 - 23 Οκτωβρίου 2019
Ποδόσφαιρο Κύπρος Η... τρελή αύξηση στα εκατομμύρια της Καραμπάχ και η σύγκριση με ΑΠΟΕΛ 06:40 - 23 Οκτωβρίου 2019
Πριν 6 μήνες, 2 βδομάδες | Opinion Eurobank’s India-Related Initiatives and the role of the IGC Business & Investment Council
Πριν 6 μήνες, 2 βδομάδες | Companies Elena Costa: The aviation company of the future will be digital, sustainable and highly adaptable
Πριν 6 μήνες, 3 βδομάδες | Opinion Strategic partnerships at the heart of Eurobank’s wealth management transformation
Πριν 6 μήνες, 3 βδομάδες | Economy Revenue from tourism records 27.2% increase to reach €955.8m in January-May 2025
Πριν 6 μήνες, 3 βδομάδες | Financial Services SEPAGA and Cellock join forces to launch game-changing 7 Seas E-Wallet